$875,000
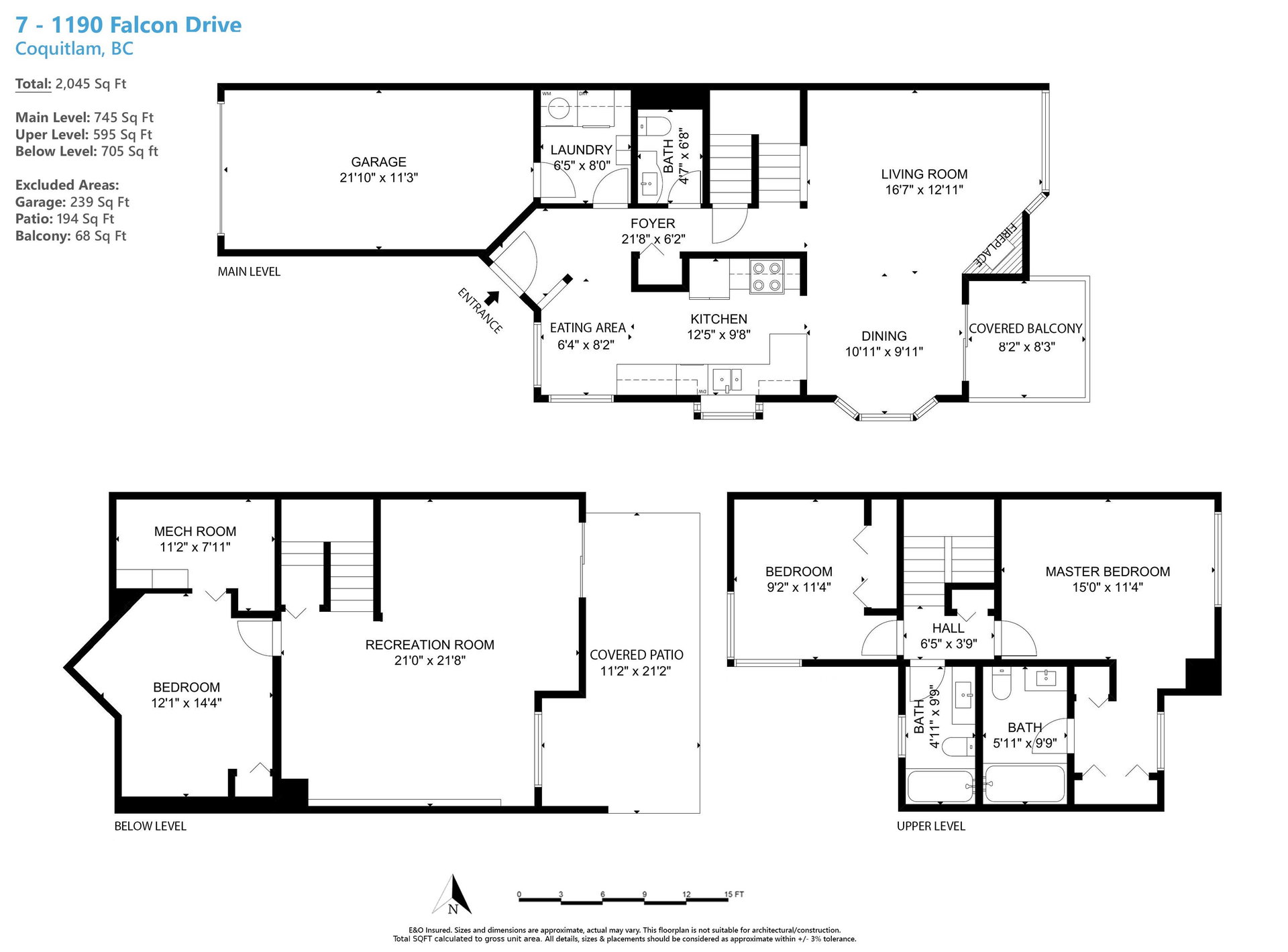
#7 - 1190 Falcon Drive
Sold
Features & amenities
- Cul-de-Sac
- Greenbelt
- Private Setting
- Recreation Nearby
- Shopping Nearby
- Fireplace 1
Additional details
- MLS® # R2618625
- Type Condo/Townhouse
- Subtype Townhouse
Listing is presented by
Antonina Tihanenoka
Angell Hasman & Associates